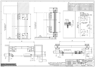
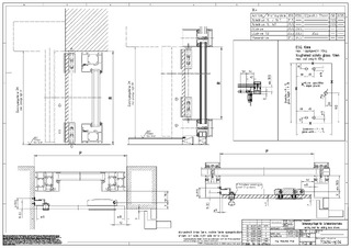
GEZE MCRdrive * Modulair hermetisch-sluitend schuifdeursysteem met luchtdoorlaatbaarheidscertificering
- Bestaat uit de GEZE MCRdrive aandrijfeenheid en het GEZE MCRdrive vleugelsysteem
- Maximale klantenindividualiteit door modulaire constructie: aandrijfeenheid en/of vleugelsysteem inclusief profiel- en afdichtingssysteem
- Voldoet aan de hoogste luchtdoorlatendheidsklasse D volgens EN 1026 / EN 12207 en de geluidsisolatie-eis EN 4109 van 37dB
- Verfijnde profielsysteem voor de realisatie van smalle contouren en grote glasoppervlakken
- Universeel profielsysteem voor glazen, HPL- of roestvrijstalen deurvleugels
- Rondomlopend afdichtingssysteem met afdichtingshoeken verlaagt de luchtdoorlaatbaarheid van het gesloten schuifdeursysteem
- Hermetische afdichting door laten zakken en aandrukken van de deurvleugel op de kozijnconstructie
- Geoptimaliseerde openingsbreedte voor de ziekenhuismodus (verplegings-, reinigings- en bedopening)
- Lage bestel- en verwerkingscomplexiteit door eenvoudig productconcept
- Configuratie door middel van een configuratietool mogelijk
- Eenvoudige en snelle montage op basis van montagetoleranties en de mogelijkheid van de fijnafstelling van de deurvleugel ter plaatse
- Koppelbaar en door middel van open standaard (BACnet) in de gebouwautomatisering integreerbaar
- Schakelbaar glas en stralingsbescherming met loodinzetstuk volgens DIN 6834-1 kunnen gerealiseerd worden
Toepassingsgebieden
- Schuifdeursystemen met enkele vleugel
- Binnendeuren voor bereiken met hermetische luchtdichtheidseisen
- Openingsbreedtes van 800 tot 2500 mm mogelijk
- Operatiekamers, quarantaineruimtes en intensive care-ruimtes in de gezondheidszorg
- Laboratoria van onderzoeksinstituten
- Farmaceutica- en levensmiddelenindustrie
Inbouwsituaties in referentieobjecten en -video's
Productspecificaties
| GEZE MCRdrive | |
| Voor 1-vleugelige deursystemen | Ja |
| Vleugelgewicht (max.) 1-vleugelig | 200 kg |
| Openingsbreedte 1-vleugelige deuren | 800 mm - 2500 mm |
| Vrije doorgangshoogte | 2500 mm |
| Bedrijfstemperatuur | -15 - 50 °C |
| Beschermingsgraad | IP20 |
| Normconformiteit | EN 16005, DIN EN ISO 13849: Performance Level D, DIN EN 12207:2016 |
Downloads
LABELLING OBLIGATION: © GEZE GmbH
LABELLING OBLIGATION: © GEZE GmbH
LABELLING OBLIGATION: © GEZE GmbH
LABELLING OBLIGATION: © GEZE GmbH
LABELLING OBLIGATION: © GEZE GmbH
LABELLING OBLIGATION: © GEZE GmbH
LABELLING OBLIGATION: © GEZE GmbH
LABELLING OBLIGATION: © GEZE GmbH
LABELLING OBLIGATION: © GEZE GmbH
LABELLING OBLIGATION: © GEZE GmbH
LABELLING OBLIGATION: © GEZE GmbH
LABELLING OBLIGATION: © GEZE GmbH
LABELLING OBLIGATION: © GEZE GmbH
LABELLING OBLIGATION: © GEZE GmbH
LABELLING OBLIGATION: © GEZE GmbH
Varianten & bevestigingsmateriaal
* Opmerking over de weergegeven producten
De hierboven genoemde producten kunnen variëren qua vorm, type, kenmerken en functie (ontwerp, afmetingen, beschikbaarheid, goedkeuringen, normen etc.) afhankelijk van het land. Neem voor vragen contact op met uw GEZE-contactpersoon, of stuur ons een E-Mail .