Schaar OL 90 N * Schaar OL 90 N met standaard vleugelbok
- Bereikt bij alle vleugelhoogtes de volledige openingsbreedte van 170 mm
- Weinig ruimte nodig door vlak design van de schaar
- Vastzetten in de schaar garandeert een veilige vleugelvergrendeling
- Ontkoppelblokkering aan de schaar biedt extra veiligheid
- Schaarontkoppeling door vrijgavetoets maakt de raamreiniging van binnen en buiten makkelijker
- Compleet voorgemonteerde modules vergemakkelijken de montage
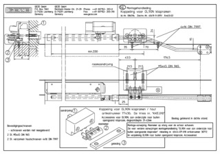
Toepassingsgebieden
- Comfortabele en dagelijkse ventilatie van ruimtes en trappenhuizen
- Naar binnen openende rechthoekige ramen met kiepvleugel
- Montage op houten (geen euronut), kunststof of aluminium ramen
- Kopmontage
Inbouwsituaties in referentieobjecten en -video's
Productspecificaties
| Schaar OL 90 N | |
| Openingsbreedte (max.) | 170 mm |
| Vleugelbreedte (min.) | 380 mm |
| Vleugelhoogte (min.) | 250 mm |
| Vleugelgewicht (max.) | 80 kg |
| Benodigde ruimte (max.) | 19 mm |
| Openingswijdte instelbaar (reductie van de slag) | Ja |
Downloads
Varianten & bevestigingsmateriaal
* Opmerking over de weergegeven producten
De hierboven genoemde producten kunnen variëren qua vorm, type, kenmerken en functie (ontwerp, afmetingen, beschikbaarheid, goedkeuringen, normen etc.) afhankelijk van het land. Neem voor vragen contact op met uw GEZE-contactpersoon, of stuur ons een E-Mail .