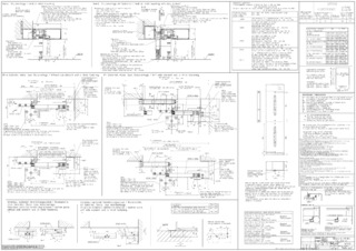
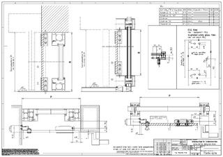
Slimdrive SL-RC2 * Automatisch lineair-schuifdeursysteem met inbraakwerendheid volgens weerstandsklasse RC2
- Gecertificeerde inbraakwering volgens weerstandsklasse RC2 (Resistance Class)
- Functie RC2 is alleen in de bedrijfsmodus "Nacht" beschikbaar, waarin de deur via de stangvergrendeling vergrendeld is.
- Uitgerust met een stangvergrendeling en versterkte profielcomponenten
- Slijtagearme gelijkstroomaandrijving met zeer rustige loop, slechts 7 cm hoog
- Koppelbaar en door middel van open standaard (BACnet) in de gebouwautomatisering integreerbaar
- Automatische storingsherkenning en registratie
- Vrij parametrisering in- en uitgangen voor verschillende functies
- Geïntegreerde oplaadbare batterij voor noodopening bij veiligheidsrelevante fouten, zoals stroomuitval
Toepassingsgebieden
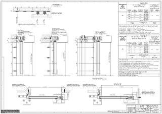
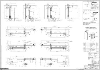
- Schuifdeursystemen met enkele en dubbele vleugel
- Binnen- en buitendeuren met zeer hoge veiligheidseisen
- Openingsbreedtes van 800 tot 3000 mm mogelijk
- Deurvleugelgewichten tot 120 kg per vleugel
- Geschikte profielsystemen zijn profielsysteem met smalle lijst met ISO- en Mono-glas volgens weerstandsklasse RC2
Inbouwsituaties in referentieobjecten en -video's
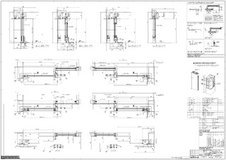
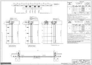
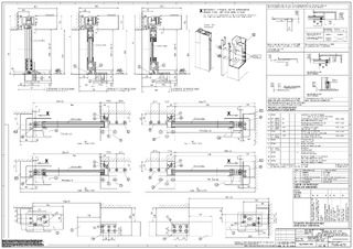
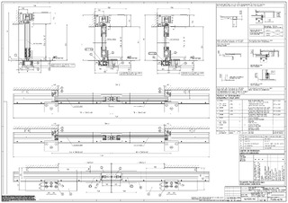
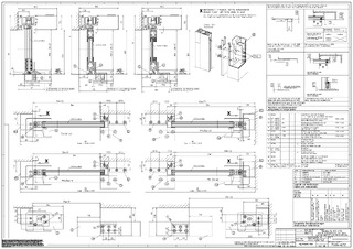
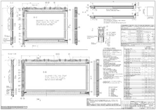
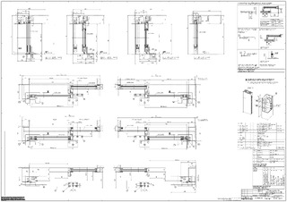
Productspecificaties
| Slimdrive SL-RC2 | |
| Voor 1-vleugelige deursystemen | Ja |
| Voor 2-vleugelige deursystemen | Ja |
| ISO-glas met smalle lijst | Ja |
| MONO-glas met smalle lijst | Ja |
| Hoogte | 70 mm |
| Diepte | 190 mm |
| Vleugelgewicht (max.) 1-vleugelig | 120 kg |
| Vleugelgewicht (max.) 2-vleugelig | 120 kg |
| Openingsbreedte 1-vleugelige deuren | 800 mm - 3000 mm |
| Openingsbreedte 2-vleugelige deuren | 900 mm - 3000 mm |
| Bedrijfstemperatuur | -15 - 50 °C |
| Beschermingsgraad | IP20 |
| Ontkoppeling van de netspanning | Hoofdschakelaar in de aandrijving |
| Normconformiteit | DIN 18650, DIN EN ISO 13849: Performance Level D, EN 16005 |
Downloads
LABELLING OBLIGATION: © GEZE GmbH
LABELLING OBLIGATION: © Zweitze Korten
Varianten & bevestigingsmateriaal
* Opmerking over de weergegeven producten
De hierboven genoemde producten kunnen variëren qua vorm, type, kenmerken en functie (ontwerp, afmetingen, beschikbaarheid, goedkeuringen, normen etc.) afhankelijk van het land. Neem voor vragen contact op met uw GEZE-contactpersoon, of stuur ons een E-Mail .