PL 55 * Glass Fitting vloervergrendelingsbeslag met ronde pen
- Elegante afdekkappen van gepolijst of geborsteld roestvrij staal
- Probleemloze aanpassing aan de glasdiktes van 10 - 12 mm
Toepassingsgebieden
- Voor volledig glazen deuren
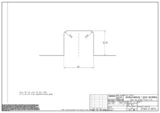
- Voor glasdiktes 10 en 12 mm
- Voor aanslag- en pendeldeuren
- Voor installaties binnen als buiten
- Voor 1- en 2-vleugelige draaideuren geschikt
Productspecificaties
| PL 55 | |
| Afmetingen | 102 x 32 x 96 mm |
| Breedte | 32 mm |
| Lengte | 102 mm |
| Hoogte | 96 mm |
| Glasdikte (min.) | 10 mm |
| Glasdikte (max.) | 12 mm |
| Type montage | Glasmontage |
Downloads
Varianten & bevestigingsmateriaal
* Opmerking over de weergegeven producten
De hierboven genoemde producten kunnen variëren qua vorm, type, kenmerken en functie (ontwerp, afmetingen, beschikbaarheid, goedkeuringen, normen etc.) afhankelijk van het land. Neem voor vragen contact op met uw GEZE-contactpersoon, of stuur ons een E-Mail .