GEZE ActiveStop inbouw * Deurdemping aan beide zijden voor draaideuren van hout binnen
- Traploos instelbare deuropeningshoek van 80°-140°
- Zonder aanpassing voor naar rechts en links openende deuren bruikbaar
- Gecontroleerd openen en sluiten van deuren tot max. 45 kg vleugelgewicht
- Zacht stoppen, stil sluiten en comfortabel openhouden van deuren
- Dichtslaande deuren, ingeklemde vingers, schade aan wanden en meubels zijn bijna uitgesloten
- Veilig stilstaan van de deur in geopende positie waardoor er geen deurstopper nodig is
- Openings- en sluitdemping in ingebouwde toestand via een klep instelbaar
- Geïntegreerde veiligheidskventiel biedt bescherming tegen overbelasting
Toepassingsgebieden
- Rechtse en linkse houten aanslagdeuren binnen
- Binnendeuren met hoog gebruiksgemak
- Aanslagdeuren tot 1100 mm vleugelbreedte
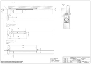
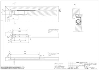
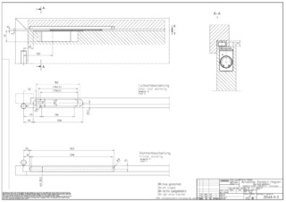
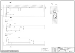
- Geïntegreerde montage in het deurblad
- Barrièrevrije toegangen conform DIN 18040-2
Inbouwsituaties in referentieobjecten en -video's
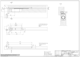
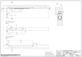
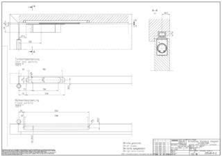
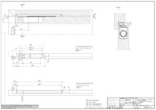
Productspecificaties
| GEZE ActiveStop inbouw | |
| Diepte | 28 mm |
| Hoogte | 64 mm |
| Vleugelgewicht (max.) | 45 kg |
| Vleugelbreedte (max.) | 1100 mm |
| Type deur | stomp, opdek |
| Vleugeldikte vanaf | 38 mm |
| Identieke uitvoering DIN-L en DIN-R | Ja |
| Luchtopening | ca. 6 mm vrije ruimte voor de hendel |
| Montagewijze | verdekt liggend |
| Intrekdemping instelbaar | Ja, via klep |
| Intrekdemping in sluitrichting vanaf | 25 ° |
| Vrijloopbereik | 25 ° - 60 ° |
| Intrekdemping in openingsrichting vanaf | 60 ° |
| Deuropeningshoek instelbaar | Ja, met variabele aanpassing |
| Openhoudpositie instelbaar | 80 ° - 140 ° |
| Veiligheidsventiel tegen overbelasting | Ja |
Downloads
LABELLING OBLIGATION: © GEZE GmbH
Varianten & bevestigingsmateriaal
* Opmerking over de weergegeven producten
De hierboven genoemde producten kunnen variëren qua vorm, type, kenmerken en functie (ontwerp, afmetingen, beschikbaarheid, goedkeuringen, normen etc.) afhankelijk van het land. Neem voor vragen contact op met uw GEZE-contactpersoon, of stuur ons een E-Mail .