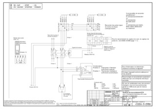
Commande pluie et vent * Poste météorologique et système pour la surveillance de la pluie et du vent
- Surface du capteur chauffée et résistante à la corrosion
- Capteur de vitesse du vent sans composants mécaniques
- Unité de commande avec bloc d’alimentation intégré et LED pour l'indication de la pluie/du vent
- Point de commutation du capteur de vitesse du vent réglable
- Sortie Signaux de vent et de pluie individuellement ou ensemble via des contacts sans potentiel
Domaines d’application
- Pour le raccordement aux centrales de désenfumage et aux commandes de ventilation
- Pour montage mural ou sur poteau
- Fermeture automatique des fenêtres en cas de vent ou de précipitations en fonctionnement de la ventilation
Téléchargements
LABELLING OBLIGATION: © GEZE GmbH
Variantes et accessoires
* Remarque concernant les produits présentés
Les produits mentionnés ci-dessus peuvent varier en termes de forme, de type, de caractéristiques et de fonction (design, dimensions, disponibilité, homologations, normes, etc.) selon les pays. Pour toute question, veuillez contacter votre interlocuteur GEZE ou nous écrire à E-Mail .