AutoSlide EI1 30 * Système de porte coulissante en bois automatique avec classe de résistance au feu certification EI1 30
- Vantail de porte en bois résistant au feu de De Coene Products
- Surface pré-peinte, HPL ou placage
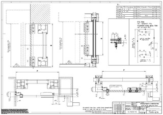
- Design élancé avec une hauteur de capot de seulement 100 mm pour une plus grande liberté de création
- Avec chariot double, poids de vantail autorisé jusqu’à 140 kg
- Montage efficace grâce au rail pré-percé et aux trous oblongs
- Passe-câbles intégrés pour simplifier la pose
- Connectivité et intégration dans l’automatisation des bâtiments via une norme ouverte (BACnet)
- Détection autonome des défauts et compte-rendu
- Entrées et sorties librement paramétrables pour différentes fonctions
- Accumulateur intégré pour l'ouverture et la fermeture de secours en cas de panne de courant
- Les chariots autonettoyants réduisent les efforts de maintenance
- Interface de service pour une maintenance aisée
- Des serrures électroniques sont disponibles en option
Domaines d’application
- Porte coulissante en bois à un vantail résistante au feu avec automatisme de portes coulissantes GEZE ECdrive T2
Situations de montage dans des projets de référence et des vidéos
Spécifications du produit
| AutoSlide EI1 30 | |
| Pour portes à 1 vantail | Oui |
| Pour portes à 2 vantaux | Non |
| Pour portes à 4 vantaux | Non |
| Poids (max.) - 1 vantail | 140 kg |
| Largeur d'ouverture (max.) | 1700 mm |
| Hauteur de passage de l'éclairage | 2300 mm |
| Largeur de vantail de - à | 1800 mm |
| Hauteur de vantail de - à | 2345 mm |
| Épaisseur du vantail | 50 mm |
| Conformité aux normes | Résistance au feu EN 13051-2:2010, EI1 30 (Belgique) |
Téléchargements
* Remarque concernant les produits présentés
Les produits mentionnés ci-dessus peuvent varier en termes de forme, de type, de caractéristiques et de fonction (design, dimensions, disponibilité, homologations, normes, etc.) selon les pays. Pour toute question, veuillez contacter votre interlocuteur GEZE ou nous écrire à E-Mail .