RWA K 600 G * Entraînement à levier rabattable pour le montage sur des fenêtres et des portes avec connexion fixe via un bras à coulisse
- Ouverture de fenêtre à 90° en moins de 60 secondes
- Entraînement puissant avec un couple élevé
- Câble de raccordement avec un connecteur facile à remplacer
- Contact de signalisation intégré pour la commande gâche électrique ou les retours
- Commande Syncro intégrée qui peut faire fonctionner deux motorisations de fenêtres au maximum sans appareil de commande externe
- Testé comme dispositif d'évacuation naturelle de fumée et de chaleur (NRWG) selon la norme EN 12101-2
Domaines d’application
- RWA et ventilation naturelle (24 V)
- Fenêtres à soufflet, à l’italienne et à la française ouvrant vers l’intérieur et vers l’extérieur
- Montage sur les fenêtres en bois, en PVC ou en métal
- Montage sur battant et sur dormant
- Montage sur la porte possible
Spécifications du produit
| RWA K 600 G | |
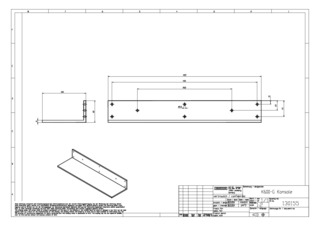
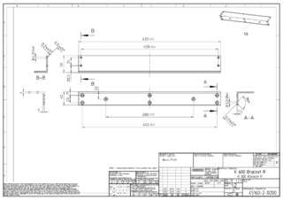
| Dimensions | 421 x 40 x 86 mm |
| Matériau du boîtier | Aluminium |
| Force de maintien en position fermée (max.) | 3000 N |
| Force de poussée | 600 N |
| Force de traction | 600 N |
| Tension en cours de fonctionnement | 24 V ± 25 % |
| Tension d‘alimentation | 24 V DC |
| Consommation de courant | 1.4 A |
| Ondulation résiduelle | 20 % |
| Facteur d'utilisation | 30 % |
| Longueur du câble de connexion | 5 m |
| Longueur spéciale du câble de raccordement | 10 m |
| Section de câble min. | 0.5 mm² |
| Nombre de fils | 5 fils |
| Température de service | -5 - 75 °C |
| Indice de protection | IP32 |
| Classe de protection | III |
| Fonction Synchro | Oui |
| Vitesse d'ouverture réglable (ventilation) | Oui |
| Verrouillage supplémentaire optionnel | Oui |
| Type de verrouillage supplémentaire | Entraînement de verrouillage |
| Type de raccourcissement de course | Appareil de réglage |
| Capteur de fin de course sorti | Capteur de déplacement interne |
| Capteur de fin de course rentré | Capteur de déplacement interne |
| Mise hors service pour surcharge | Oui |
| DENFC contrôlé | Oui |
| Nombre synchronisation des automatismes de portes | 2 |
| Fenêtre à soufflet OUVRANT VERS L’INTÉRIEUR montage sur dormant | Oui |
| Fenêtre à soufflet OUVRANT VERS L’INTÉRIEUR montage sur l’ouvrant | Oui |
| Fenêtre à soufflet OUVRANT VERS L’EXTÉRIEUR montage sur dormant | Oui |
| Fenêtre à soufflet OUVRANT VERS L’EXTÉRIEUR montage sur l’ouvrant | Oui |
| Fenêtre à la française OUVRANT VERS L’INTÉRIEUR montage sur dormant | Oui |
| Fenêtre à la française OUVRANT VERS L’INTÉRIEUR montage sur l’ouvrant | Oui |
| Fenêtre à la française OUVRANT VERS L’EXTÉRIEUR montage sur dormant | Oui |
| Fenêtre à la française OUVRANT VERS L’EXTÉRIEUR montage sur l’ouvrant | Oui |
| Fenêtre à battant projetant OUVRANT VERS L’INTÉRIEUR montage sur dormant | Oui |
| Fenêtre à battant projetant OUVRANT VERS L’INTÉRIEUR montage sur l’ouvrant | Oui |
| Fenêtre à battant projetant OUVRANT VERS L’EXTÉRIEUR montage sur dormant | Oui |
| Fenêtre à battant projetant OUVRANT VERS L’EXTÉRIEUR montage sur l’ouvrant | Oui |
Téléchargements
LABELLING OBLIGATION: © GEZE GmbH
LABELLING OBLIGATION: © Lorenz Frey / GEZE GmbH
Variantes et accessoires
* Remarque concernant les produits présentés
Les produits mentionnés ci-dessus peuvent varier en termes de forme, de type, de caractéristiques et de fonction (design, dimensions, disponibilité, homologations, normes, etc.) selon les pays. Pour toute question, veuillez contacter votre interlocuteur GEZE ou nous écrire à E-Mail .