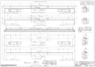
Guide rail 2-leaf

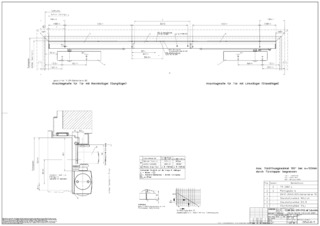
TS 5000 L-ISM * Overhead door closer system with guide rail on opposite hinge side for double leaf doors up to 2800 mm hinge clearance with integrated closing sequence control

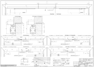
Overhead door closer with guide rail system TS 5000 ISM Door closer for double leaf doors with closing sequence control and with integrated back check, which causes the strongly opened doors to be slowed down.
  • System comprising two door closers TS 5000 L and an ISM guide rail for the opposite hinge side
  • Closing force of EN 2-6 with variable adjustment
  • Can be used for right and left hand doors without conversion
  • Closing sequence control holds the active leaf in the waiting position until the passive leaf is closed
  • Hydraulic latching action which accelerates the door shortly before it is closed
  • Closing speed can be individually adjusted
Show more
  • Integrated back check, slows down doors that are thrown open forcefully
  • Visual closing force display for easy control of the setting
  • All functions can be adjusted from the front
Contact us

Application Areas

  • Fire and smoke protection doors
  • Double leaf single-action doors
  • Symmetrical and asymmetrical division of door possible
  • Single-action doors up to 2800 mm hinge clearance and 1400 mm leaf width
  • Minimum hinge clearance 1360 mm, minimum width of the passive leaf 380 mm
  • Panic function available on the active leaf
  • Door leaf installation opposite hinge side

Technical data

TS 5000 L-ISM
Barrier-free in accordance with DIN 18040 up to leaf width (max.) in mm 1100 mm
Leaf width (max.) 1400 mm
Type of installation Door leaf installation opposite hinge side
Opening angle (max.) 130 °
Minimum hinge clearance 1360 mm
Minimum passive leaf width 380 mm
Suitability for fire protection doors Yes
Closing force adjustable Yes, stepless
Adjustable closing speed Yes
Latching action adjustable Yes, via valve
Back check integrated Yes, hydraulically adjustable
Position of closing force adjustment Front
Visual closing force display Yes
Hold-open function Optional
Closing sequence control integrated Yes

Downloads

Contact

GEZE Central +32-15-21-11-28 GEZE Service +32-15-42-20-26