TS 5000 L

Closer body TS 5000 L * For overhead door closers with guide rail EN 2-6 on the opposite hinge side

GEZE TS 5000 Closer body Overhead door closer with guide rails for single leaf fire and smoke protection doors
  • Closing force can be variably adjusted from the front
  • Visual closing force display ensures correct setting
  • Closing seed can be adjusted from the front via valve
  • Latching action can be adjusted from the front via valve
  • Back check can be adjusted from the front via valve
  • Door closer, can be used for right and left hand doors
Show more
  • Minimal installation effort due to low number of individual parts and quick setting
Contact us

Application Areas

  • Fire and smoke protection doors
  • Right and left single-action doors
  • Single-action doors up to 1400 mm leaf width
  • Door leaf installation hinge side and transom installation opposite hinge side

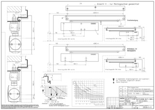
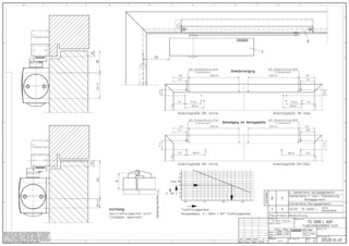
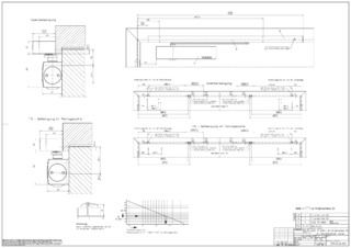
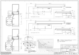
Technical data

Closer body TS 5000 L
Closing force in accordance with EN 1154 EN 2 - 6
Leaf width (max.) 1400 mm
Type of installation Door leaf installation opposite hinge side, Transom installation hinge side
Opening angle (max.) 120 °
Identical design for DIN left and DIN right Yes
Standard conformity EN 1154:1996/A1:2002/AC:2006
Suitability for fire protection doors Yes
Length 287 mm
Width 47 mm
Height 60 mm
Closing force adjustable Yes, stepless
Adjustable closing speed Yes
Latching action adjustable Yes, via valve
Back check integrated Yes, hydraulically adjustable
Position of closing force adjustment Front
Visual closing force display Yes
Safety valve againts overload Yes
Thermo-control valves Yes

Downloads

Variants & Accessories

Contact

GEZE Central +32-15-21-11-28 GEZE Service +32-15-42-20-26